| 媒体No. | 本屋改札外№2 |
|---|---|
| 種類 | 電飾 |
| 期間 | 6ヶ月 |
| サイズ | 縦150cm×横110cm |
○初回費用について
駅看板は広告料金の他に画面制作費・施工費等がかかります。
費用については別途お見積もりいたします。
駅看板以外の駅ポスターやデジタルサイネージ広告、その他駅広告についてはお問い合わせください。
詳細
【他広告主様にてご利用中の看板です】
この看板の並び、または他区画にて駅看板をお探しのお客様は直接お問い合わせください。
ご利用頂けるスペースをご案内させて頂きます。
---------------
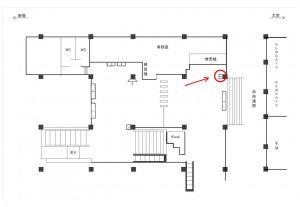
JR埼京線北与野駅、改札外に設置された電飾看板です。
主にホームから改札に向かう際にご覧いただける看板です。
改札を出なくても見える位置にあるので、視認性が確保されており
企業広告や店舗誘導などに大変オススメです!
北与野駅の企業様に是非ご利用して頂きたい看板です。
※平成25年11月11日からご利用頂けます。
























































